Villa singola in vendita

La Cassa, Via Don Carlo Terando
€ 345.000
Prezzo aggiornato
7 locali 7 locali
216 Mq 216 Mq
3 bagni 3 bagni

Villa singola in vendita

La Cassa, Via Don Carlo Terando

Descrizione annuncio

Villa indipendente a La Cassa tutta su un unico livello. CLASSE ENERGETICA 'C'

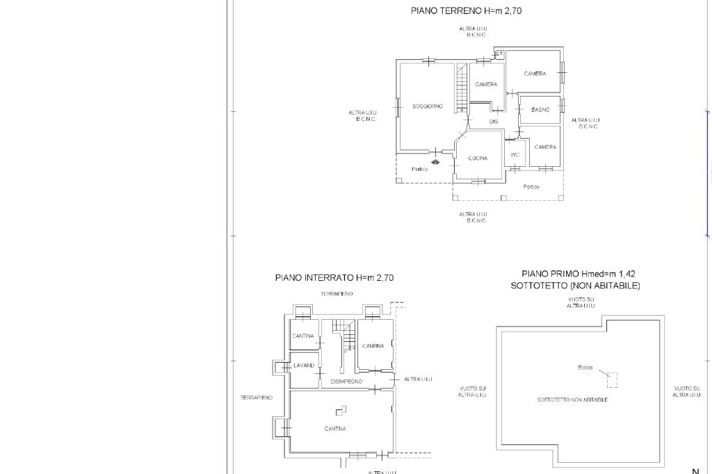
A pochi passi dal centro di La Cassa proponiamo una villa indipendente costruita nel 2006, con struttura in prefabbricato Rubner,ad alto ripsarmio energetico, realizzata con materiali naturali e soluzioni che garantiscono comfort, isolamento e bassi consumi energetici, poggiata su un piano seminterrato interamente in cemento armato secondo i criteri delle costruzioni tradizionali. L’immobile è in perfette condizioni ed è stato curato con grande attenzione nel tempo. Il vero punto di forza di questa villa è che l’abitazione principale si sviluppa su circa 110 mq tutti su un unico livello, una soluzione rara e comoda, ideale per chi cerca spazi funzionali e facilmente fruibili. Il piano terra offre un ampio salone living, cucina abitabile, tre camere da letto e due bagni entrambi finestrati, con spazi ben distribuiti per una vita quotidiana senza scale. Il piano sottotetto, raggiungibile tramite botola con scala retrattile posizionata nel disimpegno, ha altezza centrale di circa 2,50m e occupa la stessa metratura del piano terra. Il piano seminterrato, raggiungibile sia tramite scala interna che da accesso esterno, è ben illuminato da porta finestra e altri punti luce e comprende una taverna di circa 40 mq, disimpegno, locale lavanderia e due cantine. Tutti gli ambienti sono dotati di bocche di lupo, che mantengono gli spazi asciutti e salubri. Sempre allo stesso livello si trova un box auto di circa 55 mq, capace di ospitare comodamente tre autovetture. La villa è circondata da circa 550 mq di area verde pianeggiante, più un’ulteriore porzione di circa 100 mq leggermente in discesa. Un marciapiede perimetrale conduce a un ampio terrazzo coperto, dal quale è possibile godere di uno splendido panorama. Il giardino è curato e facilmente gestibile. L’esposizione sud-est della zona giorno garantisce ottima luminosità naturale durante tutta la giornata. Una villa indipendente completa, solida e comoda, perfetta per chi cerca qualità costruttiva, comfort abitativo e spazi oggi sempre più rari sul mercato.

Mostra tutto

Nelle vicinanze

Trasporto pubblico Trasporto pubblico
La Cassa (P.za 25 Aprile)
La Cassa (P.za 25 Aprile)
500 m
La Cassa (Ribolzi)
La Cassa (Ribolzi)
570 m
Ricariche auto elettriche Ricariche auto elettriche
Municipio di Givoletto | EnelX
2,5 Km
Scuole Scuole
Scuole
550 m
Scuola Elementare
2,5 Km
Farmacia Farmacia
Farmacia
330 m
Farmacia Dottor Gallo
2,5 Km
Supermercati Supermercati
Despar
2,5 Km
Bar Bar
Bellini
2,5 Km
Ristoranti Ristoranti
Il Ritrovo
280 m
Campana
860 m
Ristorante dei Cacciatori
2,3 Km
La Vecchia Lira
2,5 Km
Mai.A.Letto
2,6 Km
Mostra tutto

Caratteristiche

Rif.:
61169558
Piano:
1 di 2 (Piano su più livelli)
Box:
1
Posti auto:
4
Balconi:
1
Terrazzi:
2
Mostra tutto
Prezzo Prezzo
€ 345.000
Rata mutuo Rata mutuo
€ 1.611 / mese
Spese annue Spese annue
€ 0
Proponi il tuo prezzoProponi il tuo prezzo

Classe Energetica

C
C
C
C
C
C
C
C
C
EP globale non rinnovabile:
150.74 kW h/m² anno
EP globale rinnovabile:
150.74 kW h/m² anno
EP invernale del fabbricato:
EP estiva del fabbricato:
Anno di costruzione:
2006
Riscaldamento:
Autonomo
Tipo impianto:
A radiatori
Tipo alimentazione:
Metano

Prezzo ridotto di €1 (10%%)

Ti interessa visionare l'immobile?

Fissa un appuntamento  Fissa un appuntamento

Richiedi informazioni

Clicca su Leggi per aprire l'informativa
* Questi campi sono obbligatori

Calcola il tuo mutuo

Semplice e senza impegno
Anticipo

( % )
Mutuo

( % )

pochi semplici passi

inserisci i tuoi dati
Questionario completato
Grazie per aver richiesto un appuntamento senza impegno con un nostro Consulente del Credito e Assicurativo.

Hai inserito correttamente tutti i dati necessari e a breve riceverai una e-mail con un link da convalidare per inviare i tuoi dati.
Affiliato
Immobiliare Tre Valli Sas
Via Alpignano, 129 10040 Val Della Torre (TO)

Il nostro staff


  • Nino Labianco
    Affiliato

  • Vincenzo Iacomino
    Responsabile
Via Alpignano, 129 10040 Val Della Torre (TO)
Zona: Val Della Torre-Givoletto-Caselette-La Cassa
Mostra su mappa
Orari: lunedì - sabato 09:00-12:30, 14.30-20:00. Sabato chiusura ore 18:30
Affiliato
Immobiliare Tre Valli Sas
Via Alpignano, 129 10040 Val Della Torre (TO)

2026 Tecnocasa Franchising S.p.A. - P. IVA 08365160152 - Via Monte Bianco 60/A 20089 Rozzano (MI). Ogni agenzia ha un proprio titolare ed è autonoma. Privacy policy | Policy utilizzo | Cookie policy